济南保利琅悦网站(售楼处)保利琅悦-2025最新首页-欢迎您
更新时间:2025-04-22
立面则从良渚文化玉琮形态中提取造型元素,打造玉琮立面肌理,再搭配上高窗墙比,用大面积玻璃窗代替墙体,将窗户做大,扩大采光面积,将自然光线引入室内,渗入生活情境,展现出东方简约气质,一眼望去,飘逸又灵动。
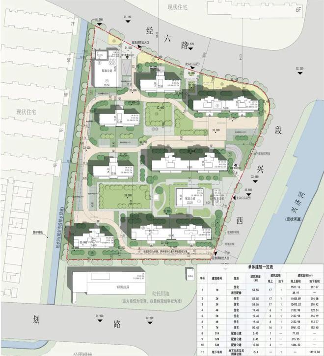
项目位于济南市槐荫区,邻近济南中轴主干道-经十路,聚集政治、经济、文化等城市矜贵资源;拥有便捷交通,地铁4号线号线环绕,坐拥经十路、二环西路、腊山河西路、北园高架等城市全维立体交通网;尊享自然景观,近邻1128亩腊山山体公园、约147亩花圃公园;腊山河、兴济河生态景观带环绕,天赋生态涵养之地;周边配套醇熟,商业林立、全维医疗、休闲地标、教育书香,实现15分钟生活圈全覆盖。
济南琅悦秉承“意境东方、一园三堂、悦见青绿、松石守望”的悦字系设计理念,在“一园三堂”的空间基础之上,提炼济南文庙的儒家文化礼序之美和趵突泉公园的灵动布局平衡之美,将二者创新融合,外呈中正之礼,内显天然雅趣,既有君子肃穆又有文人闲情,塑造端庄之外的另一种生活况味,以成更懂当代济南人的东方居所。
主入口景观亮点:入口广场的叠水面由鱼鳞演化而来,象征着财富、繁荣、和谐和幸福。入口空间经过精心刻画的美学比例,突出轴线对称,两侧细致拼接呈现卓越肌理的叠水,随着居者拾阶而归,在入口门前两侧,放置两个高达近三米的椒图,彰显大门的气势和尊贵气质。
儿童活动空间亮点:国风主题儿童乐园,以山东“孔孟之乡,礼仪之邦”作为出发点,立足当下时事,传承孔孟之道,领略国学魅力。
运动健身区域亮点:结合登高面及林下空间打造全龄运动活动区,林下结合运动器械等设置多功能运动空间,满足居民的康体需求。
适老活动空间亮点:在相对安静的林下及登高面空间设置老年棋牌休闲空间及康体活动空间等,给予老年人休闲交流的轻松场所;全区贯穿人性化设计以及无障碍设计,打造人性化的老年关怀社区。
在建筑外形上提取宋韵建筑的精巧典雅,以“鹤纹”与“玉琼”为设计灵感,将飞鹤冠顶与玉琼身段巧妙地融入建筑设计中,再结合超大窗墙比,使得整个项目呈现出一种东方人文大宅的气质。在建筑风格上,参照球速体育Welcome了国际一线豪宅的美学理念,以流线型铝板外立面与超大落地窗相结合。这种设计不仅有美感,更使得整个建筑在阳光下熠熠生辉,犹如一件闪耀的艺术品。
项目涵盖建面约143-190㎡面积段户型,一梯两户,独梯入户。LDK+X可变空间,餐客厅一体化设计,将客厅、餐厅、厨房、多功能区空间进行集聚化布局,让家庭居住空间的视野范围和活动空间扩大,空间互动性更强;南超大面宽景观阳台,私享无限风景;主卧大转角飘窗,奢享豪华居住体验;主卫豪华五件套、双台盆、浴缸,七星级度假酒店感受。

